Zum Inhalt springen
SPD Emsdetten

SPD Emsdetten

  • Startseite
  • Blog
    • Blogarchiv 2025
    • Blogarchiv 2024
  • Der Ortsverein
    • Der Vorstand
    • Die Jusos
    • Die Arbeitsgemeinschaft 60+
    • Die Chronik des Ortsvereins
  • Termine
    • Termine des OV
    • Termine der Fraktion
  • Links und mehr!
    • Unterstützung gesucht!
    • Nützliches
  • Kontakt

Kategorie: Allgemein

So kann's leichter werden: Familienbüro in die City

16. November 2019 Sascha Höcker Allgemein

Seit einigen Jahren hat Emsdetten wieder mehr kleine Kinder. Das ist gut. Noch viel besser: Auch die Zahl und Bandbreite

Weiterlesen

Stadt soll wieder selbst säubern

14. November 2019 Sascha Höcker Allgemein

„Wie sieht es denn hier aus?“ So reagieren viele, die städtische Gebäude betreten müssen, besonders die Schulen. Machen wir mehr

Weiterlesen

Update nicht nur fürs Martinum

12. November 2019 Sascha Höcker Allgemein

Der Klimawandel kostet uns heute schon Geld. Das merken wir auch dann, wenn Jahr für Jahr Schulen eine Beschattung für

Weiterlesen

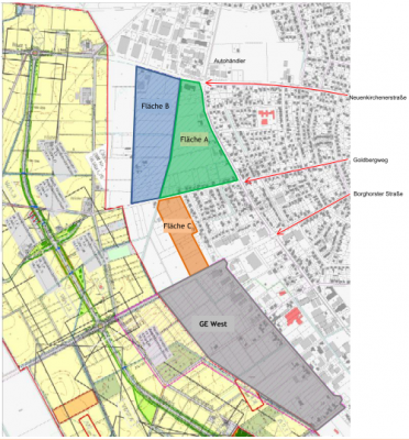
Neue Ideen für's "Südtor" gesucht

11. November 2019 Sascha Höcker Allgemein

Die schöne Herbstsonne kann es nicht wegzaubern: Wer sich von der Nordwalder Straße der Innenstadt nähert, blickt auf eine Brache.

Weiterlesen

90. Geburtstag führt nach Berlin

26. Oktober 2019 Sascha Höcker Allgemein

Nicht nur auf einen runden Geburtstag im September – immerhin den 90. – sondern auch auf eine über 30-jährige Mitgliedschaft

Weiterlesen

Zugang zur Physiotherapie erleichtern

18. Oktober 2019 Sascha Höcker Allgemein

Kostenfalle Ausbildung Die Physiotherapie ist ein notwendiger und interessanter Beruf. Trotzdem erlernten ihn seit Jahren viel zu wenig junge Leute.

Weiterlesen

Seitennummerierung der Beiträge

«Vorherige Beiträge 1 … 25 26 27 28 29 … 36 Nächste Beiträge»

Wir sind umgezogen

unser neues Büro befindet sich am Rathausplatz neben dem Familienbüro.

Neueste Beiträge

  • † Günter Tubbesing (1933-2026)
  • Wie ist das mit der Wehrpflicht?
  • Sicher zum Teekotten!
  • Kanu, Bogensport, Kolping … Wir sehen Vereinsförderung als Ganzes
  • Angst ist ein schlechter Ratgeber
  • Der Stellenplan – Worum geht es?
  • Emsdettens SPD spendet dem Frauenhaus
  • Ehre, wem Ehre gebührt

Kategorien

  • Impressum
  • Datenschutz­erklärung
  • Anmelden
  • Privatsphäre-Einstellungen ändern
  • Historie der Privatsphäre-Einstellungen
  • Einwilligungen widerrufen
  • Cookie-Richtlinie
SPD Emsdetten 2024
Cookie Consent mit Real Cookie Banner
SPD Emsdetten
Mit Stolz präsentiert von WordPress Theme: Tortuga.